王先生買下了鄭州清華園的房子,是LOFT戶型,上下雙層復式結構,裝修期間便決定加裝新風系統。從事醫生這一行業,王先生對治理室內污染極為重視,他經常看到不少因甲醛或者霧霾而發生呼吸道感染的病人前來就診,在天氣惡劣的情況下醫院幾乎座無虛席。而鄭州是霧霾高發區,加上房子正在裝修,到時裝修污染也是一大問題。為此王先生一直在尋覓除醛除霾的多功能產品,最終他選擇了蝶萊新風系統。

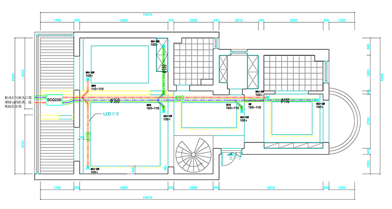
王先生的房子是LOFT戶型,一層面積70平方左右,客廳帶陽臺,主臥帶陽臺,衛生間,廚房 餐廳。二層面積70平方左右,有四個臥室和衛生間,其中三個臥室帶陽臺。兩層加起來的總面積為140平方左右。因為房子正在裝修中,適合吊頂加裝中央新風,因此蝶萊新風最終為客戶制定了2臺250m³/H的中央吊頂式新風機的方案,一臺裝在一樓的陽臺,一臺裝在二樓的衛生間。
兩層走管的安裝圖紙:


裝修好后,王先生通風了一段時間,隨后開啟新風系統,在購置家居后一家人入住,他原本擔心甲醛的問題難以解決,卻沒想到室內通風良好,幾乎沒有裝修的味道,而且遇上霧霾天室內空氣也保持清新,效果比較明顯,真正滿足了他除霾除醛的雙重需求。