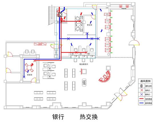
銀行人流大,特殊的業務窗口導致內部通風效果較差,而且流通的人民幣上攜帶的各種細菌也是氣體的污染源之一。針對銀行加裝新風的方案,我們列舉兩個設計方案進行展示:

方案一:該銀行封閉區域通風面積約100平米,層高以3米計,設計換氣次數1-2次且滿足每人30m3/h,則所需最小風量約為300m3/h。為了在室內外溫差大的時候達到節能的效果,采用熱交換方案。
說明:主機盡量放置在非工作區的吊頂內,送、排風口為可調式,布置成合理的對流形式,保證良好的氣流組織。使污濁氣體排出室外,新鮮氣體進入室內,讓整個房間時刻保持良好的空氣環境。
選型:該銀行封閉柜臺通風面積約60平米,層高以3米計,設計換氣次數1-2次且滿足每人30m3/h,送風量至少占排風量的一半以上,則所需最小風量約為180m3/h。可選機型為:吊頂式中央新風機DCQ500

方案二:該銀行封閉柜臺通風面積約60平米,層高以3米計,設計換氣次數1-2次且滿足每人30m3/h,送風量至少占排風量的一半以上,則所需最小風量約為180m3/h。則雙向流可選機型為:中央新風機DCQ500
說明:主機盡量放置在非工作區的吊頂內,送、排風口為可調式,布置成合理的對流形式,保證良好的氣流組織。使污濁氣體排出室外,新鮮氣體進入室內,讓整個房間時刻保持良好的空氣環境。



粵公網安備 44011202001708號