2018年4月,廣州海珠區一家打算開寵物醫院的店主聯系蝶萊,希望蝶萊能給他們提供一個去除寵物異味以及動物毛發的通風方案。該寵物店規模比較大,占地200多平米,除了提供寵物寄養、治療之外,還設置了其他功能區,企圖打造一個綜合性寵物店。寵物店的環境是決定店面是否受歡迎的關鍵因素,因此解決動物毛發飄飛以及各種動物異味便成了店主必須要考慮和解決的問題。為了進一步了解寵物店的需求,蝶萊派新風設計工程師進行現場勘察,并設計了相應的方案。

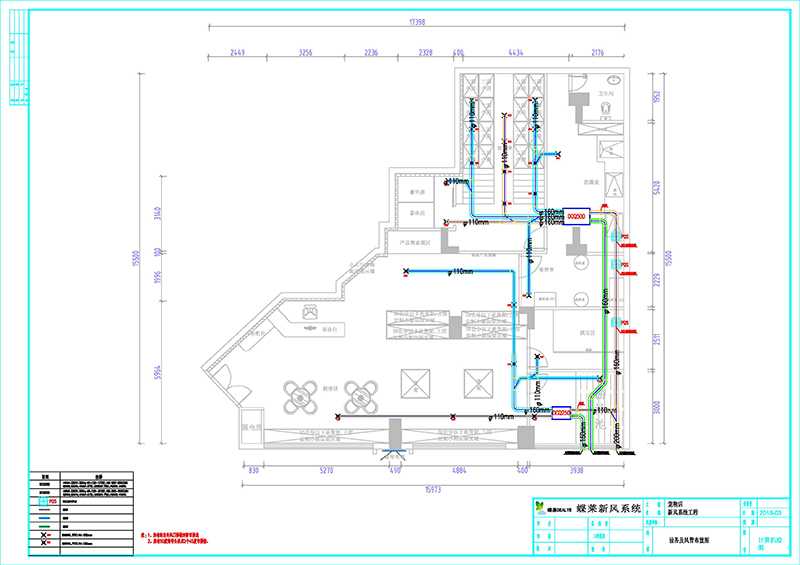
廣州海珠區的這家寵物店有200多平米,店面還未正式裝修,根據圖紙所示,寵物店主要區域有寄養室、洗澡室、美容室、娛樂區、游泳區、展示區、豪華房。寄養室由于寵物聚集,面積較大,所以需要較大的新風量,其他功能區面積較小,新風量可以設置小一些。綜合店主的需求和寵物店的實際情況,蝶萊工程師最終設計了如下方案:
各個功能區實際面積與風量配置:
選擇機型為DCQ500與DCQ250中央吊頂新風機各一臺,雙向流帶全熱交換,配置高效H13濾網與初中效濾網,過濾效率高達99.95%。
走管設計方案如下:

安裝完成后,廣州海珠區這家寵物店開展了其他店面裝修。初步安裝過程十分順利,安裝隊伍的專業性也獲得了店主的肯定。等寵物店裝修接近尾聲,蝶萊會將最后的風口裝上,到時我們會聯系店主,跟蹤回訪,實時關注新風機的使用效果,并和大家一起分享最新的情況。